HVAC Monitoring for Energy Efficiency, Comfort & Operational Control
Smarter Control for Comfortable & Efficient Spaces
Gain complete visibility into your HVAC systems with real-time monitoring that improves energy efficiency, ensures occupant comfort, and prevents performance losses. Enture™’s HVAC Monitoring solution enables facilities to track, analyze, and optimize HVAC operations continuously—without manual effort.

Why HVAC Monitoring Matters
HVAC matters for industry as it directly impacts energy efficiency, indoor air quality, and operational reliability. Optimized HVAC systems reduce energy consumption, ensure compliant working conditions, and support sustainable, cost-effective industrial operations.
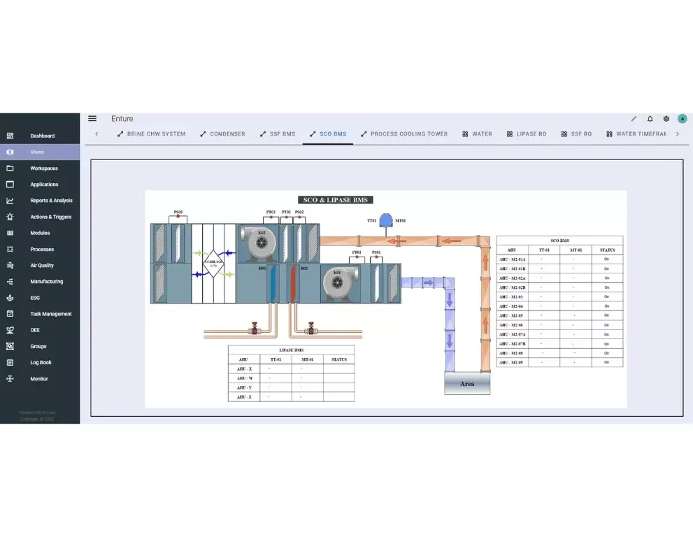
HVAC Monitoring in Real Time – The Enture™ Advantage
Complete Visibility & Control for HVAC Performance:

Detect inefficiencies early, optimize comfort, and reduce energy waste with real-time HVAC monitoring and intuitive dashboards

Analyze HVAC Performance in Real Time:
Get real-time insights into temperature, airflow, humidity, and energy usage to optimize HVAC performance and efficiency
HVAC Alerts That Protect Comfort & Energy:

Fully customized HVAC monitoring designed to match your systems, operations, and performance goals.

Command HVAC performance with real-time KPIs that drive decisive action:
Tailored monitoring and KPIs built around your HVAC assets. Configured to match your operational priorities and performance goals.
Measure and manage your HVAC systems’ environmental impact in real time:

Configured to match your requirements, giving you complete control over HVAC insights and ESG reporting.

